1200 Sq Ft House Plans Modern / 1200 Sq Ft House Plans Architectural Designs / Modern and simple to build.. With 1 car garage 3 bhk duplex architect house is for sale , it is located at datagalli mysore. Modern and simple to build. About mountain house plans & mountain home floor plans. 786 sq ft 2bhk modern house at 5 cent plot, free plan, 12 lacks. Modern house plans are common to many beach and vacation home environments and are found in every region of north america.

Choose your favorite 1,200 square foot bedroom house plan from our vast collection. Modern style house plan 76405. We are showcasing kerala house plans at 1200 sq ft for a very beautiful single story home design at an area of 1200 sq.ft.this house comprises of 2 bedrooms with attached bathrooms.this is really a great and budget house for making your dream home beautiful. Dream 1200 sq ft house plans & designs. Even though i wrote the seller with an inquiry and it took approximately a week or so to get a response, i will definitely.

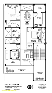
1200 Square Feet 3 Bedroom Modern Low Budget Single Floor House Home Pictures
1200 Square Feet 3 Bedroom Modern Low Budget Single Floor House Home Pictures from www.homepictures.in
Square feet details total area : In this channel you get modern house design ,3d house floor plan, interior and exterior tour in 3d , so if you like to watch house designs and interior exterior walkthrough in 3d then you are in right place. Choose your favorite 1,200 square foot bedroom house plan from our vast collection. Modern designs have a certain exterior style that's easy to identify. 1200 square feet (111 square meter) (133 square yards) 2 bedroom one floor house. Clear all filters sq ft min: We chose this house plan due to the modern clean lines and versatility of the floor plan. Truoba creates modern house designs with open floor plan and contemporary aesthetics.

Gallery of kerala home design, floor plans, elevations, interiors designs and other house related products.

Love the modern/simplistic designs and super speedy delivery! 786 sq ft 2bhk modern house at 5 cent plot, free plan, 12 lacks. Gallery of kerala home design, floor plans, elevations, interiors designs and other house related products. 30 x 40 sqft house plan 1200 sqft ghar ka naksha 30 x 40 house design join this channel to get access to perks modern double floor 40x30 house plan. Select plan set options what's included? But the architect has wisely allocated this space among many essential facilities including 3 bedroom and all other facilities. 2 number of bathrooms : If you do not find a plan on our site that suits your needs please give us a call and we would be happy to find one or custom design a plan just for you! 1200 sq ft, 2 bedrooms, 2 full baths. In general, modern house is designed to be energy and environmental friendly. Even though i wrote the seller with an inquiry and it took approximately a week or so to get a response, i will definitely. 30×40 house plans in residential complexes of 30×40 duplex house plans and apartments and residential buildings in bangalore come with a variety of facilities. Most are designed for mountainous or rugged terrain and many work well on hillside.

10+ best modern ranch house floor plans design and ideas. Spread across an area of 1200 square feet, the house has single storey. Designed by green homes, thiruvalla, pathanamthitta, kerala. So you need more space than a tiny home (cute as they are) but less than a mcmansion. Modern rtm floor plans provide more options than ever.

1200 Sq Ft 4 Bhk Flat Roof House Plan Kerala Home Design And Floor Plans 8000 Houses
1200 Sq Ft 4 Bhk Flat Roof House Plan Kerala Home Design And Floor Plans 8000 Houses from 3.bp.blogspot.com
Modern style house plan 76405. 1200 square feet (111 square meter) (133 square yards) 2 bedroom one floor house. Even though i wrote the seller with an inquiry and it took approximately a week or so to get a response, i will definitely. All modern house plans can be purchased online. Modern house plans are common to many beach and vacation home environments and are found in every region of north america. Select plan set options what's included? But the architect has wisely allocated this space among many essential facilities including 3 bedroom and all other facilities. We are showcasing kerala house plans at 1200 sq ft for a very beautiful single story home design at an area of 1200 sq.ft.this house comprises of 2 bedrooms with attached bathrooms.this is really a great and budget house for making your dream home beautiful.

It consist all teak and quality materials.

Modern designs have a certain exterior style that's easy to identify. 1200 square feet (111 square meter) (133 square yards) 2 bedroom one floor house. To by plan # bhg modern home plans frequently have large expanses of glass and high ceilings and almost never have small paned traditional windows. For some of these house plans, we have additional versions available in our office. Most are designed for mountainous or rugged terrain and many work well on hillside. » add to saved searches. 5bhk modern house elevation and plan design. Choose your favorite 1,200 square foot bedroom house plan from our vast collection. Modern house plans are common to many beach and vacation home environments and are found in every region of north america. All modern house plans can be purchased online. Clear all filters sq ft min: With 1 car garage 3 bhk duplex architect house is for sale , it is located at datagalli mysore. Truoba creates modern house designs with open floor plan and contemporary aesthetics.

It consist all teak and quality materials. 1200 sq ft, 2 bedrooms, 2 full baths. Select plan set options what's included? Modern rtm floor plans provide more options than ever. Modern and simple to build.

Contemporary Style House Plan 3 Beds 1 5 Baths 1200 Sq Ft Plan 538 15 Houseplans Com
Contemporary Style House Plan 3 Beds 1 5 Baths 1200 Sq Ft Plan 538 15 Houseplans Com from cdn.houseplansservices.com
Most are designed for mountainous or rugged terrain and many work well on hillside. 10+ best modern ranch house floor plans design and ideas. All modern house plans can be purchased online. Indian style area wise modern home designs and floor plans collection for 1000, 600 sq ft, 1500 , 1200 sq ft house plans with front elevation kerala duplex. The choice of materials including and shades add a warm yet contemporary feeling to this unique design. Select plan set options what's included? Square feet details total area : 1200 sq ft house plans.

Love the modern/simplistic designs and super speedy delivery!

So you need more space than a tiny home (cute as they are) but less than a mcmansion. Most are designed for mountainous or rugged terrain and many work well on hillside. About mountain house plans & mountain home floor plans. 5bhk modern house elevation and plan design. 1200 sq ft house plans. But the architect has wisely allocated this space among many essential facilities including 3 bedroom and all other facilities. Country cottage designs work well as primary. Use aac blocks which reduces the labour cost, reduces our time, material cost by around 30% for cement, bricks and sand. 1200 total living area 772 main level 428 upper level 2 bedrooms 2 full baths 27'7 w x 28'0 d. Designed by green homes, thiruvalla, pathanamthitta, kerala. » add to saved searches. In this channel you get modern house design ,3d house floor plan, interior and exterior tour in 3d , so if you like to watch house designs and interior exterior walkthrough in 3d then you are in right place. America's best house plans offers a range of floor plans exceptionally designed in order to offer comfort, versatility and style.

By